
Haus unter Rax
Pettenbach, Austria
Architecture project - 2024
Size - 111 sqm
Materials - Ecococon straw panels, earth plasters, timber cladding
Design - Martin Žižka
Haus unter Rax is in the beautiful valley of Reichenau under the Rax mountain range at the eastern edge of the Alps.
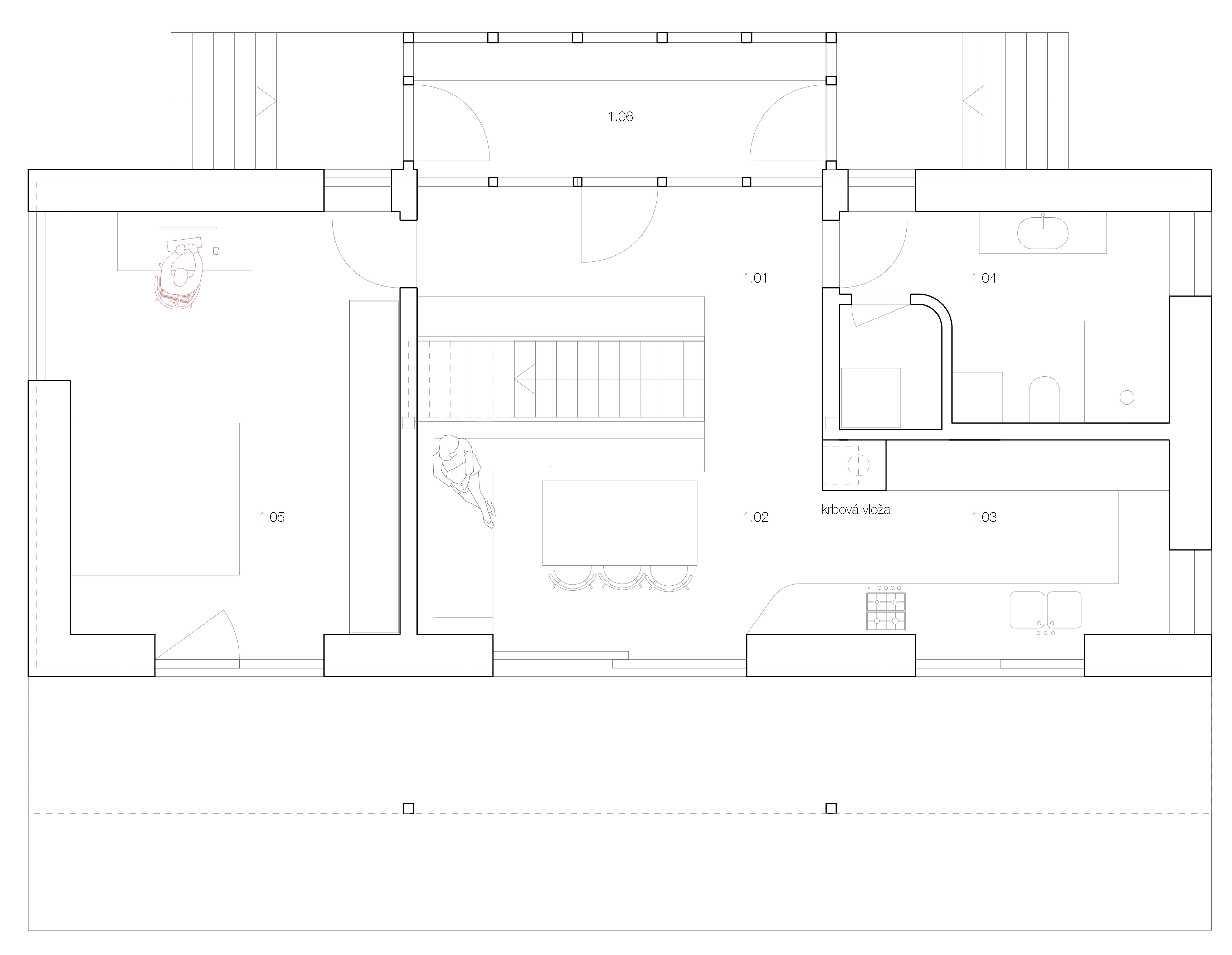
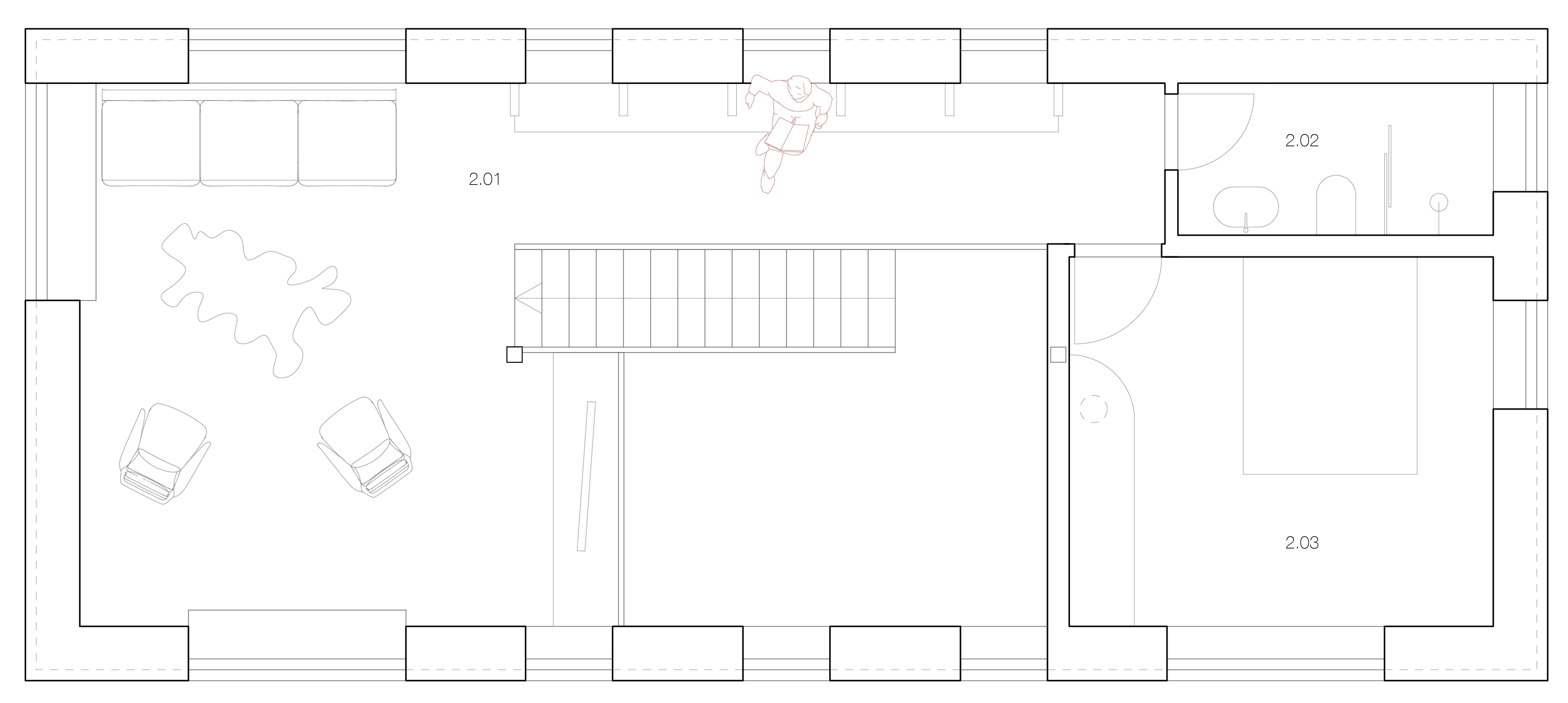
Within a relatively dense urban village setting, but with very close proximity to a 40 minute train commute to Vienna, we opted for a living room on the second floor to maximize views of the Rax mountain range.
There’s a double height space in the center of the house above the dining room and staircase, with a rhythmic sequence of windows which accentuate spatial transitions.
The house will be made of straw panels with clay plasters on the inside and timber cladding on the outside. Generous overhangs protect the natural materials of the house and provides shading in the summer.
Pettenbach, Austria
Architecture project - 2024
Size - 111 sqm
Materials - Ecococon straw panels, earth plasters, timber cladding
Design - Martin Žižka
Haus unter Rax is in the beautiful valley of Reichenau under the Rax mountain range at the eastern edge of the Alps.
Within a relatively dense urban village setting, but with very close proximity to a 40 minute train commute to Vienna, we opted for a living room on the second floor to maximize views of the Rax mountain range.
There’s a double height space in the center of the house above the dining room and staircase, with a rhythmic sequence of windows which accentuate spatial transitions.
The house will be made of straw panels with clay plasters on the inside and timber cladding on the outside. Generous overhangs protect the natural materials of the house and provides shading in the summer.



sections

model shots
 
 
 
1st floor

second floor















